Пролетные строения железнодорожных мостов

Металлические мосты отличаются высокой прочностью при сравнительно малой массе. Они возводятся из типовых деталей с высокой механизацией сборочных работ, а потому заслуженно востребованы.

Из общей протяженности ж/д мостов 4/3 составляют конструкции именно из металла. Пролетные строения железнодорожных мостов составляют серьезную конкуренцию даже железобетонным конструкциям — большой вес ЖБК требует более мощных опор, что создает сложности при строительно-монтажных работах.

Фото пролетных строений  мостов, изготовленных нашей компанией в Твери:

Плюсы и минусы металлических пролетных строений

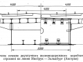
Металлические пролётные строения обладают необходимой легкостью, жёсткостью и экономичностью, что позволяет использовать их при пролётах длиной до 300 м. Впрочем, пролет свыше 500 м также не проблема – в этих случаях применяются металлические пролётные строения в виде сквозных ферм.

Сооружения из стали имеют один существенный недостаток – они требуют хорошей защиты для предотвращения коррозии. Так что приобретать пролетные строения железнодорожных мостов стоит только у зарекомендовавших себя поставщиков. Разместив заказ у непосредственного производителя ООО “Индустрия сварки” из Твери, заказчик получает качественные металлоизделия в полном соответствии с пожеланиями клиента и климатическими особенностями региона эксплуатации. При наличии надежной защиты от коррозионного разрушения железнодорожный мост требует минимального ухода и сохраняет свои эксплуатационные характеристики десятилетиями.

Почему стоит обратиться именно к нам?

ООО “Индустрия сварки” из Твери имеет в своём распоряжении необходимые производственные мощности, квалифицированный персонал, что позволяет изготовить любые металлоконструкции по документации клиента. Также вы можете заказать у нас транспортировку готовой продукции по указанному заказчиком адресу. Доставка осуществляется только в пределах Тверской области . Для получения консультации, можно связаться с нашими специалистами по телефону +7 (929) 234 76 54, электронная почта для заявок – tver@svarkaperm.ru.


Для заказа вы можете обратиться к менеджерам нашей компании
по телефону:+7 (929) 234 76 54 или отправить заявку на нашу
электронную почту:tver@svarkaperm.ru


Форма заказа